Description
Les Copains de l'Immo vous présentent ce T2 de 47,92m2 au dernier étage.
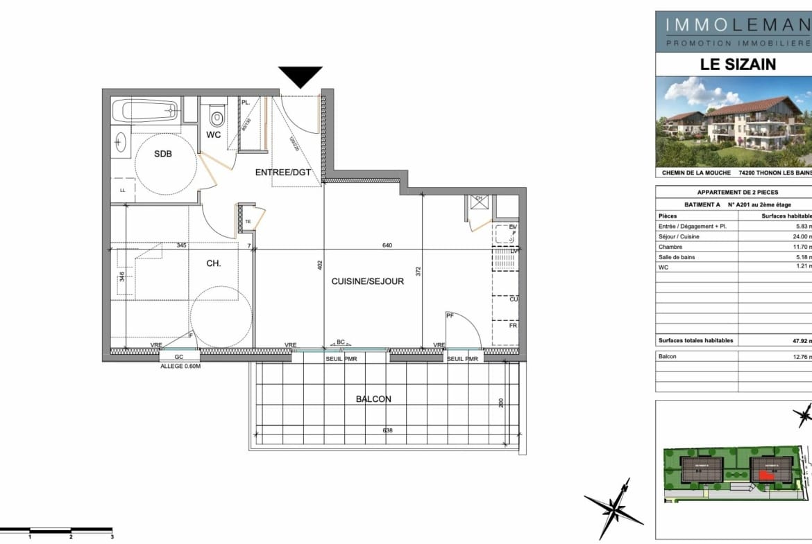
Il se compose ainsi : entrée avec dégagement et placard, un séjour avec cuisine ouverte, une chambre, une salle de bains et des toilettes séparés.
Vous pourrez profiter d'une belle terrasse.
Contactez-nous pour plus de renseignements !
Honoraires à la charge du vendeur.
DPE / GES : non applicable.
Détails
- Référence: 85693769
- Prix 211.000€
- Surface 47.92
- Chambre 1
- Pièces 2
- Statut Acheter
- Type Appartement
Simulation bancaire
Mensuel
- Apport personnel
- Montant total
- Mensualité du prêt bancaire
Annonces similaires
il y a 6 mois
il y a 6 mois
il y a 6 mois
il y a 6 mois

