Description
Les Copains de l'Immo vous présentent ce T3 de 64,91m2 au premier étage.
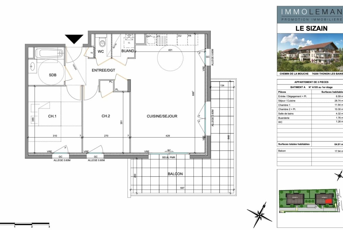
Il se compose ainsi : entrée avec dégagement et placard, un séjour avec cuisine ouverte, deux chambres dont une avec placard, une salle de bains, une buanderie et des toilettes séparés.
Vous pourrez profiter d'une belle terrasse.
Contactez-nous pour plus de renseignements !
Honoraires à la charge du vendeur.
DPE / GES : non applicable.
Détails
- Référence: 85693768
- Prix 281.000€
- Surface 64.91
- Chambres 2
- Pièces 3
- Statut Acheter
- Type Appartement
Simulation bancaire
Mensuel
- Apport personnel
- Montant total
- Mensualité du prêt bancaire
Annonces similaires
il y a 7 mois
il y a 7 mois
il y a 7 mois
il y a 7 mois

