Description
Les Copains de l’Immo vous proposent à BONS EN CHABLAIS, à proximité immédiate des commodités et de la gare, un immeuble à rénover.
Ce bâtiment construit dans les années 1940 dispose d’une structure saine (maçonnerie, charpente)!
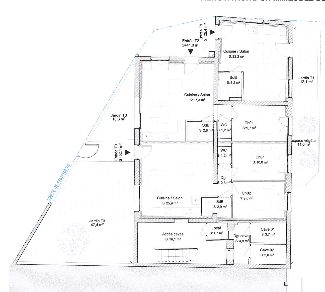
Il est composé actuellement de 4 appartements:
– T3 de 64,02m2
– T3 de 59,13m2
-T4 de 77,93m2
-T4 de 77,93m2
Un permis pour une rénovation globale est en cours d’instruction. Le changement de destination de l’atelier en RDC permettra l’aménagement de 3 nouveaux lots pour une surface d’environ 115 m2 habitables supplémentaires.
Le terrain attenant permettra le stationnement d’une dizaine de véhicules.
La mise en copropriété sera faite pour la vente.
En bref, un projet d’environ 400 m2 habitables divisés en 7 appartements sur un terrain de 825 m2.
Appelez les Copains de l’Immo pour en savoir plus.
Aucune procédure en cours.
Les informations sur les risques auxquels ce bien est exposé sont disponibles sur le site Géorisques : georisques.gouv.fr
Détails
- Référence 271
- Prix 850.000€
- Surface 395.09
- Chambre 0
- Pièce 0
- Salle de bains 0
- Garages 10
- Type de bien Immeuble
- Statut de propriété Vente
DPE et GES
- Diagnostic de performance énergétique (DPE): G
- Consommation (énergie primaire): 438
- GES Émissions Class: G
- GES Émissions: 126
Diagnostic performance énergetique
Logement extrêmement performant
Logement extrêmement peu performant
Émission de gaz à effet de sere
Peu d émissions de Co2
Émissions de Co2 très importantes
Simulation bancaire
- Apport personnel
- Montant total
- Mensualité du prêt bancaire

















